Location: Fujian Province, ChinaStart-up time: Jan., 2001Background:Original capacity of gas separation plant was 180 Kt/a where propylene tower had 2...
Location: Daqing, ChinaStart-up time: Oct., 1999 Background:This 600 Kt/a gas separation plant, which was designed by SEI, was the largest unit in...
Location: Fujian Province, ChinaStart-up Time: Dec. 2013 Background:The original deisobutanizer included two columns which operated in series, the tra...
Location: Shandong Province, ChinaStart-up time: 2013 Background:Low-pressure carbonyl synthesis technology was used to produce butyl octanol in this ...
Location: Hunan Province, ChinaStart-up time: 2012 Background:Original trays were boat-shape valve trays which were low efficiency and capacit...
Location: Shandong, Inner Mongolia and Ningxia, ChinaStart-up time: 2014 Background:According to the material sources, producing butadiene product inc...
Location: Quanzhou, Fujian province, ChinaStart-up time: 2013 Background:Four columns, which were absorber, fractionator, dethanizer and stabilizer...
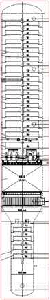
Location: Fujian Province, ChinaStart-up time: Jan., 2014 Background:Original capacity of hydrocracking unit was 2.35Mt/a, which fractionator ID was 5...